Skip til hoved indholdet Bliv medlem Bliv medlem

Velkommen til afdeling 440 Abildhøjparken

Denne afdeling omfatter 24 rækkehuse, opført i 2005, beliggende ca. 900 meter fra bymidten, ca. 500 meter til en dagligvarebutik og tæt på Præstø Multicenter (sportshal og ældrecenter). Boligerne opvarmes med fjernvarme. Til lejemålet hører komfur og emhætte, skur og en lille have. Der er et fælleshus, som benyttes meget til sociale arrangementer for beboerne og som kun kan lejes af beboerne i afdelingen til private arrangementer. Boligerne er handicapvenlige, både med tilgang til boligen og inde i boligen. For at komme i betragtning til en bolig, skal lejer være over 50 år og ingen hjemmeboende børn. Præstø by ligger ca. 10 km. fra motorvejsafkørsel 39, hvorfra der kun er ca. 80 km. til København. Præstø er en gammel købstad med et hyggeligt havnemiljø og en mindre badestrand.

Faciliteter

Byggeår

2005

Husdyr
Ja

1 hund tilladt efter ansøgning.

Boligtyper i afdelingen

Almen bolig

2 værelses

Almen bolig
Almen bolig

3 værelses

Almen bolig
Almen bolig

4 værelses

Almen bolig

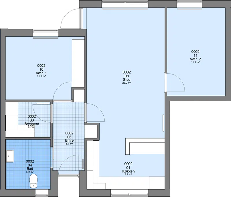
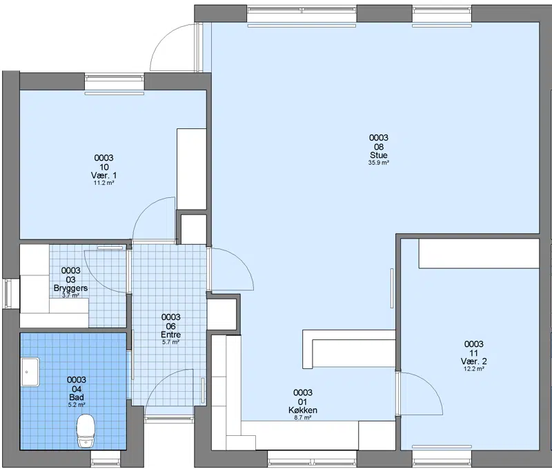
Boligtype

Værelser

Størrelse

Husleje

Indskud/dp

Plantegning

Almen bolig

2

70 m²

7008 kr.

24099 kr.

Almen bolig

3

84 m²

8405 kr.

28921 kr.

Almen bolig

4

98 m²

9803 kr.

33743 kr.

Afdelingsdokumenter

Her finder du nyttig information om din afdeling, såsom husorden, vedligeholdelse af dit lejemål, eller referater fra hovedbestyrelsen.

Afdelingsbestyrelsesmedlemmer

Navn

Email

Kjeld Christiansen

ruthkjeld@outlook.dk

Laila Bjarnskov

Lissi Bodil Folkmann

Annie Weng Pedersen

Bendt Nielsen

Kontakt - Jens Glaser

Ejendomsfunktionær

Adresse:

Søtoftsvej 8
4720 Præstø


jensg@vorbo.dk

Kontakt - Per Nielsen

Driftsleder

Adresse:


Placering

Kontakt

Falunvej 8
4760 Vordingborg

CVR nr. 70 96 26 16

Telefon: 45 55 37 18 84
info@vorbo.dk

Åbningstider

Mandag: kl. 08.30 - 15.00
Tirsdag - torsdag: kl. 08.30 - 12.30
Torsdag tillige: kl. 16.00 - 17.30
Fredag: lukket

Webstedslinks