Skip til hoved indholdet Bliv medlem Bliv medlem

Velkommen til afdeling 514 Hollænderhaven

Hollænderhaven er en lille bebyggelse fra 1970 som ligger i den østlige del af byen, tæt på indkøb og Hollænderhavens Forsamlingsbygning.
Afdelingen består af små rækkehuse med hver sin egen lille have og udhus. Ejendommen opvarmes med fjernvarme og er tilsluttet Vordingborg Antenneforening. Boligerne udlejes kun til personer over 60 år. Bebyggelsen er rækkehuse med i alt 9 lejemål. Der er installeret komfur og emhætte.

Faciliteter

Fællesvaskeri

Ja

Byggeår

1970

Husdyr

Nej

Boligtyper i afdelingen

Almen bolig

2 værelses

Almen bolig

Boligtype

Værelser

Størrelse

Husleje

Indskud/dp

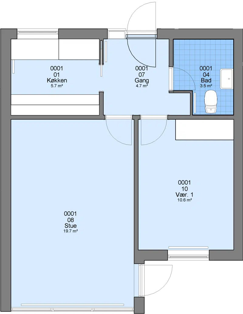
Plantegning

Almen bolig

2

55 m²

4840 kr.

15000 kr.

Afdelingsdokumenter

Her finder du nyttig information om din afdeling, såsom husorden, vedligeholdelse af dit lejemål, eller referater fra hovedbestyrelsen.

Kontakt - Kim Andersen

Ejendomsfunktionær

Adresse:


4760 Vordingborg


Kontakt - Carsten Thomsen

Driftsleder

Adresse:

Falunvej 8
4760 Vordingborg

55311702
carsten@vorbo.dk

Placering

Kontakt

Falunvej 8
4760 Vordingborg

CVR nr. 70 96 26 16

Telefon: 45 55 37 18 84
info@vorbo.dk

Åbningstider

Mandag: kl. 08.30 - 15.00
Tirsdag - torsdag: kl. 08.30 - 12.30
Torsdag tillige: kl. 16.00 - 17.30
Fredag: lukket

Webstedslinks