Skip til hoved indholdet Bliv medlem Bliv medlem

Velkommen til afdeling 523 Kirkebakken

Kirkebakken er opført i 1992 og er en bebyggelse som ligger i Kastrup ca. 5 km. vest for Vordingborg.
Ejendommen opvarmes med naturgas og har et godt fælleshus med vaskeri og et lille mødelokale. Hver lejlighed har egen lille have med terrasse og eget skur. Alle 3-værelses lejligheder er opført i forskudt plan og har egen have. 2-værelses lejlighederne er opført i stueplan med egen have samt på 1. sal uden altan. Herudover er der 4 ungdomsboliger. Bebyggelsen er tæt/lav med i alt 34 lejemål. Der er installeret komfur og emhætte.

Faciliteter

Fællesvaskeri

Ja

Byggeår

1992

Husdyr
Ja

2 husdyr tilladt efter ansøgning.

Boligtyper i afdelingen

Ungdomsbolig

1 værelses

Ungdomsbolig
Almen bolig

2 værelses

Almen bolig
Almen bolig

3 værelses

Almen bolig

Boligtype

Værelser

Størrelse

Husleje

Indskud/dp

Plantegning

Ungdomsbolig

1

26.3 m²

2228 kr.

6500 kr.

Almen bolig

2

65.5 m²

5116 kr.

15840 kr.

Almen bolig

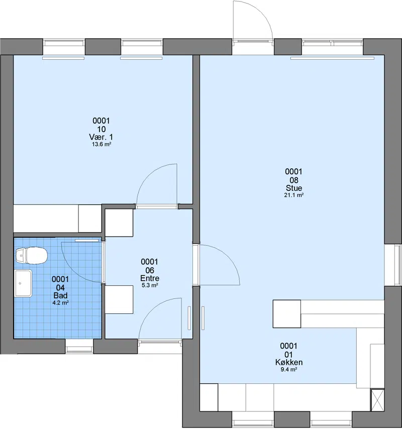
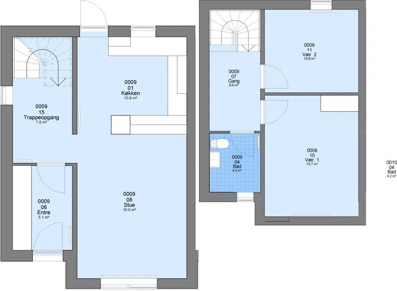
3

96.3 m²

7512 kr.

23040 kr.

Afdelingsdokumenter

Her finder du nyttig information om din afdeling, såsom husorden, vedligeholdelse af dit lejemål, eller referater fra hovedbestyrelsen.

Afdelingsbestyrelsesmedlemmer

Navn

Email

Lilli Jensen

lilkirk@live.dk

Dorthe S. Nielsen

Kim Varst Nørregaard

Marianne Adler

Stephen Alban Petersen

Kontakt - Jacob Rasmussen

Ejendomsfunktionær

Adresse:

Valdalsparken 2A
4760 Vordingborg


Kontakt - Carsten Thomsen

Driftsleder

Adresse:

Falunvej 8
4760 Vordingborg

55311702
carsten@vorbo.dk

Placering

Kontakt

Falunvej 8
4760 Vordingborg

CVR nr. 70 96 26 16

Telefon: 45 55 37 18 84
info@vorbo.dk

Åbningstider

Mandag: kl. 08.30 - 15.00
Tirsdag - torsdag: kl. 08.30 - 12.30
Torsdag tillige: kl. 16.00 - 17.30
Fredag: lukket

Webstedslinks