Skip til hoved indholdet Bliv medlem Bliv medlem

Velkommen til afdeling 109 Kornvej

På Kornvej i Lendemarke har vi en bebyggelse som ligger i tilknytning til Ulvsund Centret.
Bebyggelsen omfatter 19 rækkehuse i 1 plan med egen have samt et parcelhus på Terpsvej. I lejlighederne er der installeret komfur, emhætte og køleskab. Der er endvidere et redskabsskur til hver lejlighed.
Lejlighederne er forbeholdt ældre/handicappede over 60 år. Bebyggelsen er opført i 1991 og er tilsluttet fjernvarme.

Faciliteter

Carport

Ja

Byggeår

1971,1991

Husdyr
Ja

1 husdyr tilladt efter ansøgning. Hund max. 10 kg.

Boligtyper i afdelingen

Almen bolig

2 værelses

Almen bolig
Almen bolig

3 værelses

Almen bolig

Boligtype

Værelser

Størrelse

Husleje

Indskud/dp

Plantegning

Almen bolig

2

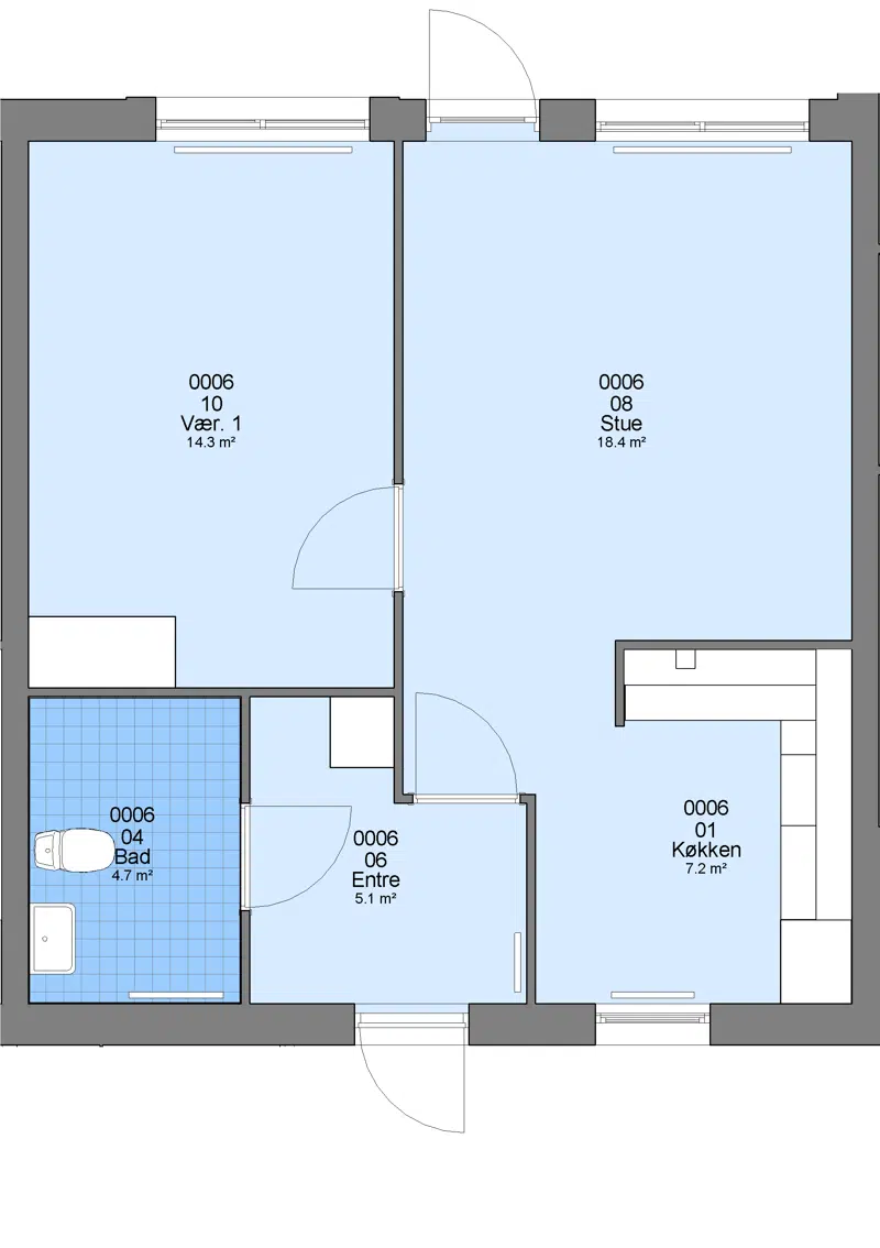
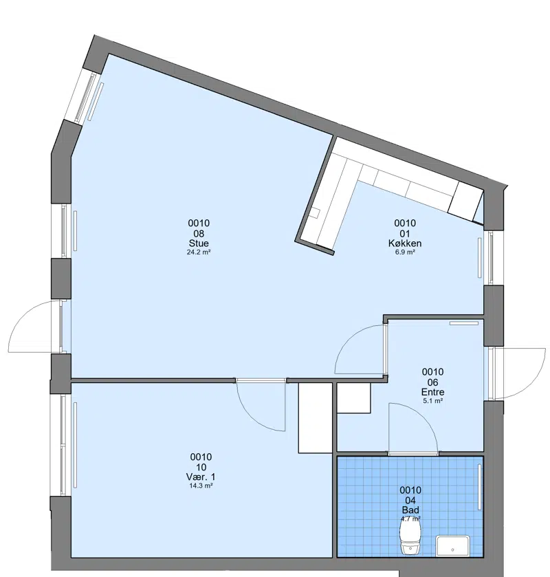
62 m²

5575 kr.

16000 kr.

Almen bolig

2

59 m²

5376 kr.

15000 kr.

Almen bolig

3

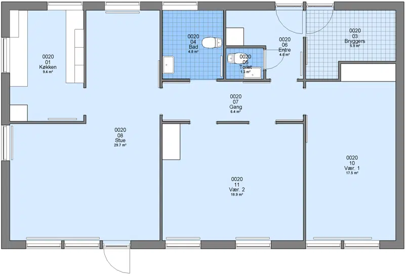
106 m²

6155 kr.

20000 kr.

Almen bolig

3

84 m²

6874 kr.

19000 kr.

Afdelingsdokumenter

Her finder du nyttig information om din afdeling, såsom husorden, vedligeholdelse af dit lejemål, eller referater fra hovedbestyrelsen.

Afdelingsbestyrelsesmedlemmer

Navn

Email

Stig Schæfermann

s.schaefermann@gmail.com

Kontakt - Stig Jensen

Ejendomsfunktionær

Adresse:


Kontakt - Søren Jeppesen

Driftsleder

Adresse:


Placering

Kontakt

Falunvej 8
4760 Vordingborg

CVR nr. 70 96 26 16

Telefon: 45 55 37 18 84
info@vorbo.dk

Åbningstider

Mandag: kl. 08.30 - 15.00
Tirsdag - torsdag: kl. 08.30 - 12.30
Torsdag tillige: kl. 16.00 - 17.30
Fredag: lukket

Webstedslinks