Skip til hoved indholdet Bliv medlem Bliv medlem

Velkommen til afdeling 517 Krægevænget

Krægevænget er opført i 1972 og renoveret i 2018. Ejendommen består af én boligblok, som ligger i den østlige del af byen tæt på Gåsetårnet og gågaden. Ejendommen opvarmes med fjernvarme og er tilsluttet Vordingborg Antenneforening. Der er fællesvaskeri i kælderen hvor beboernes egne kælderrum også findes.
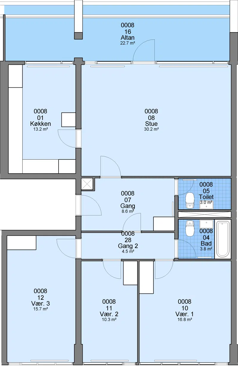
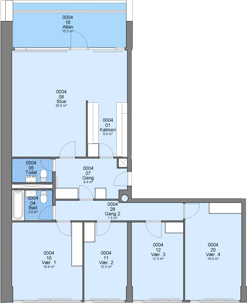
Til lejlighederne i stueplan hører en lille gårdhave og til lejlighederne på 1. og 2. sal hører en stor terrasse. Bebyggelsen er terrassehuse i 3 etager med i alt 16 lejemål beliggende st., 1. og 2. sal. Lejlighederne med 3, 4 og 5 værelser har ekstra toilet/bad.
Der er installeret komfur, emhætte og køleskab.

Faciliteter

Altan

Ja

Fællesvaskeri

Ja

Byggeår

1972

Husdyr
Ja

1 husdyr medbragt tilladt efter ansøgning. Nyt husdyr må ikke anskaffes i bo perioden.

Boligtyper i afdelingen

Almen bolig

1 værelses

Almen bolig
Almen bolig

2 værelses

Almen bolig
Almen bolig

3 værelses

Almen bolig
Almen bolig

4 værelses

Almen bolig
Almen bolig

5 værelses

Almen bolig

Boligtype

Værelser

Størrelse

Husleje

Indskud/dp

Plantegning

Almen bolig

1

44 m²

4277 kr.

10560 kr.

Almen bolig

2

52 m²

4487 kr.

12480 kr.

Almen bolig

3

94 m²

8133 kr.

22560 kr.

Almen bolig

3

102 m²

8438 kr.

24480 kr.

Almen bolig

4

120 m²

10368 kr.

28800 kr.

Almen bolig

5

124 m²

10750 kr.

29760 kr.

Afdelingsdokumenter

Her finder du nyttig information om din afdeling, såsom husorden, vedligeholdelse af dit lejemål, eller referater fra hovedbestyrelsen.

Afdelingsbestyrelsesmedlemmer

Navn

Email

Lis Graae

lis.graae@gmail.com

Eva Andreassen

Maria Sindlev Clausen

Claus Olsen

Kontakt - Jacob Rasmussen

Ejendomsfunktionær

Adresse:

Valdalsparken 2A
4760 Vordingborg

22434929

Kontakt - Carsten Thomsen

Driftsleder

Adresse:

Falunvej 8
4760 Vordingborg

55311702
carsten@vorbo.dk

Placering

Kontakt

Falunvej 8
4760 Vordingborg

CVR nr. 70 96 26 16

Telefon: 45 55 37 18 84
info@vorbo.dk

Åbningstider


Mandag- torsdag: kl. 08.30 - 12.30
Torsdag tillige: kl. 16.00 - 17.00
Fredag: lukket

Webstedslinks