Skip til hoved indholdet Bliv medlem Bliv medlem

Velkommen til afdeling 510 Mølleparken 1

Mølleparken I er opført i 1962 og ligger på en lukket vej med et dejligt boligområde i den østlige del af byen, tæt på indkøb. Ejendommen opvarmes med fjernvarme og er tilsluttet Vordingborg Antenneforening. Der er fællesvaskeri i kælderen, hvor beboernes egne kælderrum også findes.
I 1996 tilbyggede man et "tårn", således at alle lejligheder har deres egen store altan. I 2012 blev der etableret en dejlig legeplads på bebyggelsens store græsplæne. Bebyggelsen er i 3 etager med i alt 27 lejemål beliggende st., 1. og 2. sal. Til afdelingen hører 6 garager som lejes ud til beboerne efter ventelisteprincippet. Der er installeret komfur og emhætte.

Faciliteter

Altan

Ja

Fællesvaskeri

Ja

Byggeår

1962

Husdyr

Nej

Boligtyper i afdelingen

Almen bolig

1 værelses

Almen bolig
Almen bolig

2 værelses

Almen bolig
Almen bolig

3 værelses

Almen bolig
Almen bolig

4 værelses

Almen bolig

Boligtype

Værelser

Størrelse

Husleje

Indskud/dp

Plantegning

Almen bolig

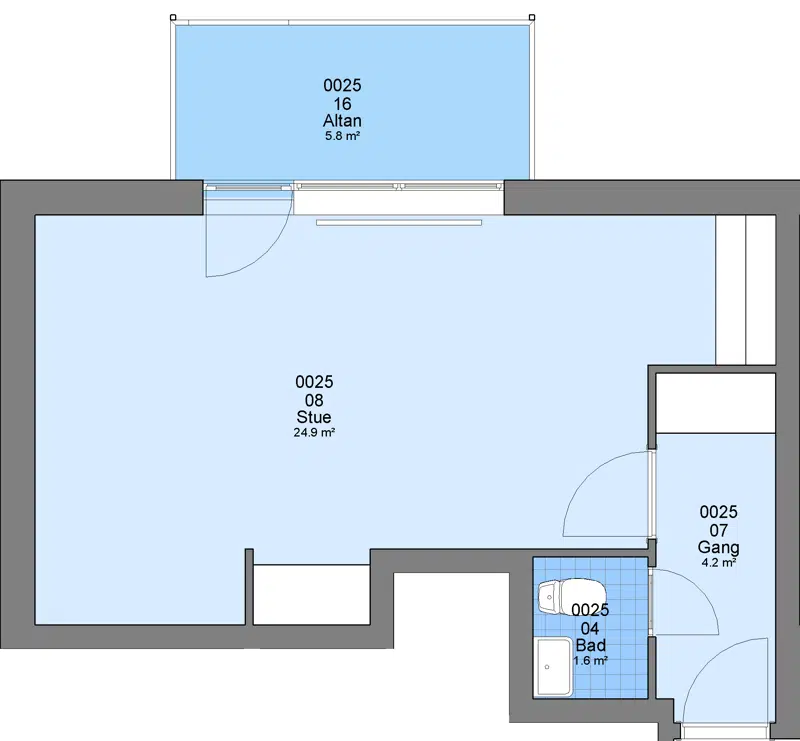
1

42 m²

2926 kr.

10080 kr.

Almen bolig

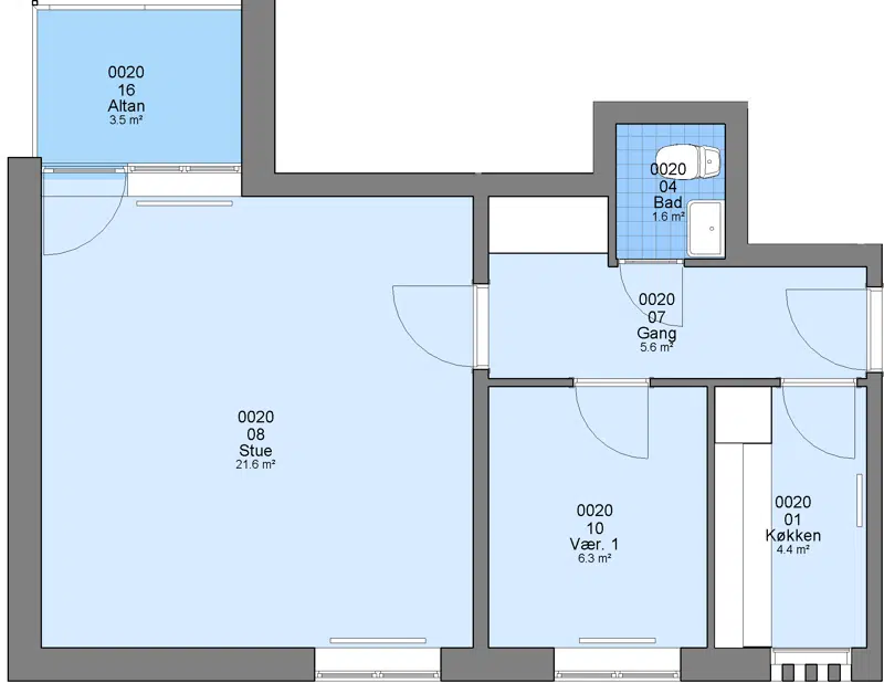
2

52 m²

3764 kr.

12480 kr.

Almen bolig

3

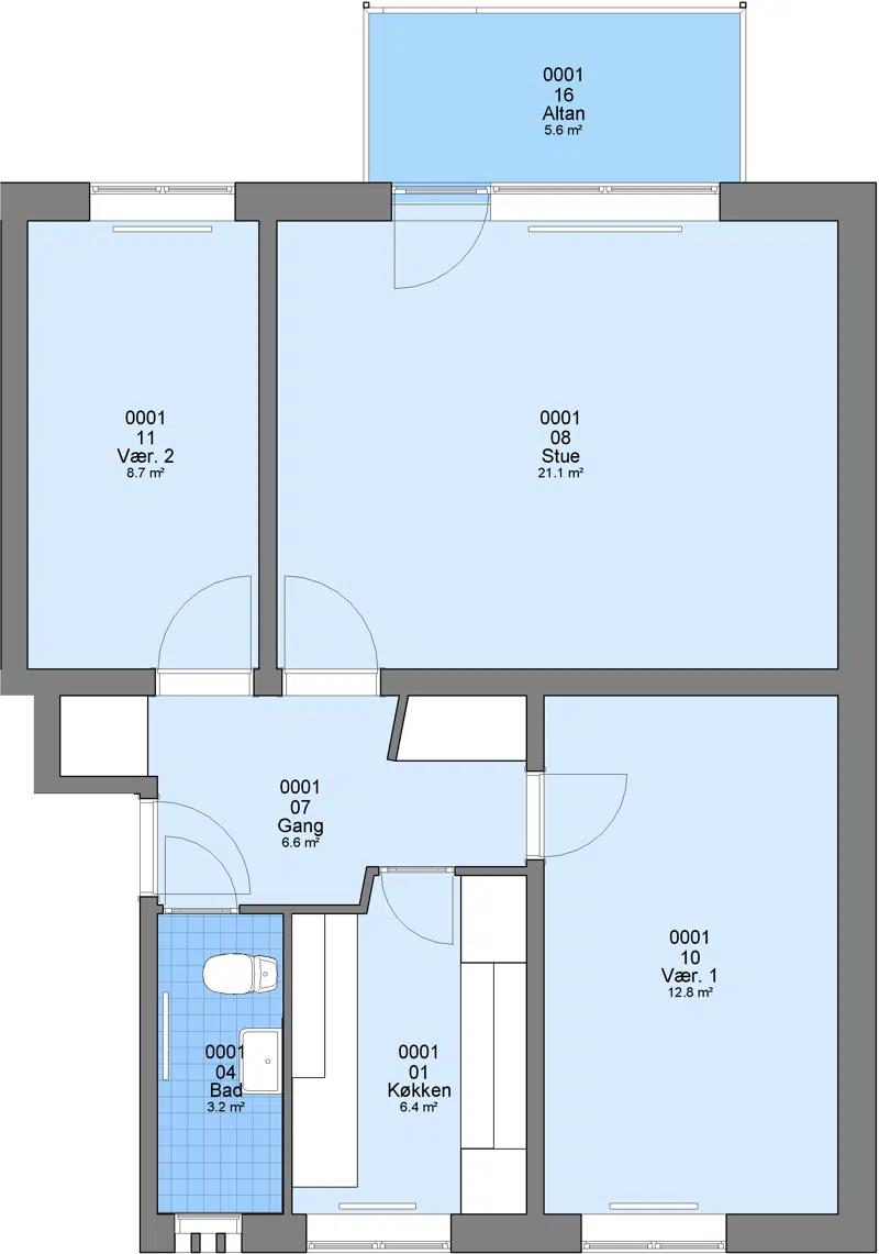
72 m²

4669 kr.

17280 kr.

Almen bolig

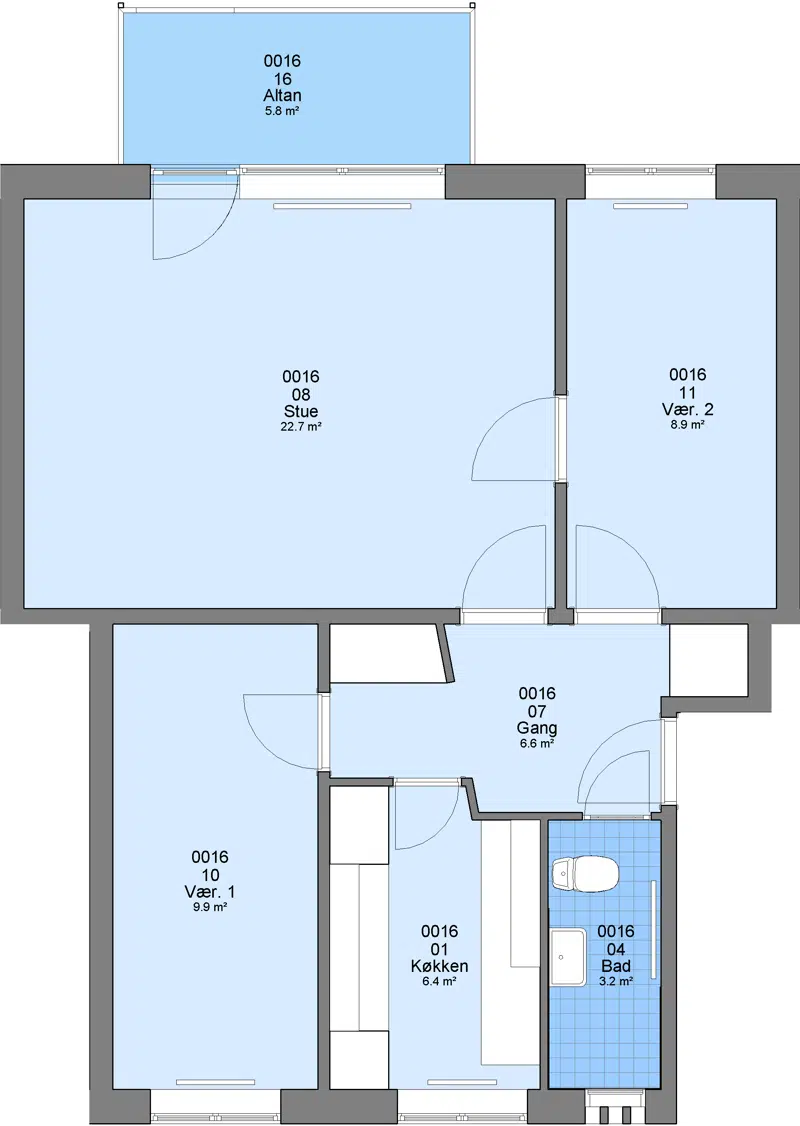
3

76 m²

4948 kr.

18240 kr.

Almen bolig

4

88 m²

5396 kr.

21120 kr.

Afdelingsdokumenter

Her finder du nyttig information om din afdeling, såsom husorden, vedligeholdelse af dit lejemål, eller referater fra hovedbestyrelsen.

Kontakt - Lennart Andersen

Ejendomsfunktionær

Adresse:


Kontakt - Carsten Thomsen

Driftsleder

Adresse:

Falunvej 8
4760 Vordingborg

55311702
carsten@vorbo.dk

Placering

Kontakt

Falunvej 8
4760 Vordingborg

CVR nr. 70 96 26 16

Telefon: 45 55 37 18 84
info@vorbo.dk

Åbningstider

Mandag: kl. 08.30 - 15.00
Tirsdag - torsdag: kl. 08.30 - 12.30
Torsdag tillige: kl. 16.00 - 17.30
Fredag: lukket

Webstedslinks