Skip til hoved indholdet Bliv medlem Bliv medlem

Velkommen til afdeling 511 Mølleparken 2

Mølleparken II blev opført i 1962 og består af 2 boligblokke som ligger for enden af en lukket vej med et dejligt boligområde i den østlige del af byen, tæt på indkøb. Ejendommen opvarmes med fjernvarme og er tilsluttet Vordingborg Antenneforening. Der er fællesvaskeri i kælderen, hvor beboernes egne kælderrum også findes.
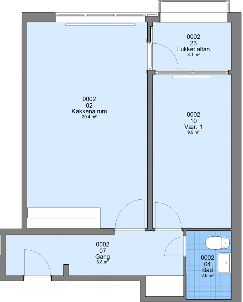
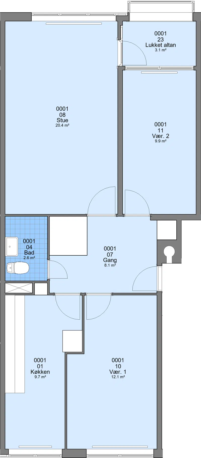
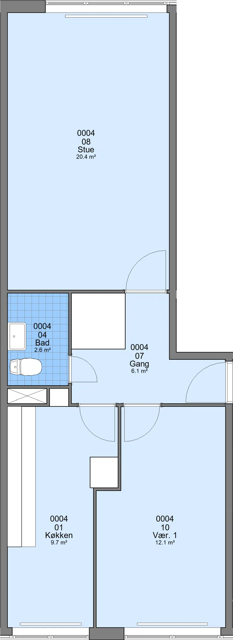
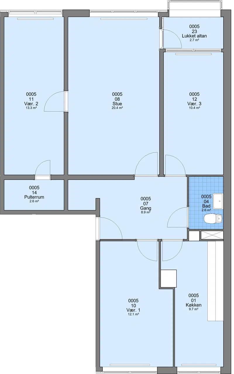
Alle lejligheder undtagen st. th. og 1. tv. har lukket altan. Alle lejligheder st. th. samt st. mf. har køkken i stuen. I 2012 blev der etableret en dejlig legeplads på bebyggelsens store græsplæne. Bebyggelsen er i 4 etager med i alt 81 lejemål beliggende st., 1., 2., og 3. sal. Til afdelingen hører 12 garager som lejes ud til beboerne efter ventelisteprincippet. Der er installeret komfur og emhætte.

Faciliteter

Altan

Ja

Fællesvaskeri

Ja

Byggeår

1962

Husdyr

Nej

Boligtyper i afdelingen

Almen bolig

1 værelses

Almen bolig
Almen bolig

2 værelses

Almen bolig
Almen bolig

3 værelses

Almen bolig
Almen bolig

4 værelses

Almen bolig

Boligtype

Værelser

Størrelse

Husleje

Indskud/dp

Plantegning

Almen bolig

1

31 m²

2814 kr.

7440 kr.

Almen bolig

2

66 m²

3896 kr.

15840 kr.

Almen bolig

2

49 m²

3418 kr.

11760 kr.

Almen bolig

3

78 m²

4265 kr.

18720 kr.

Almen bolig

4

94 m²

4748 kr.

22560 kr.

Afdelingsdokumenter

Her finder du nyttig information om din afdeling, såsom husorden, vedligeholdelse af dit lejemål, eller referater fra hovedbestyrelsen.

Afdelingsbestyrelsesmedlemmer

Navn

Email

Maria Krants Dronninggaard

Kontakt - Lennart Andersen

Ejendomsfunktionær

Adresse:


Kontakt - Carsten Thomsen

Driftsleder

Adresse:

Falunvej 8
4760 Vordingborg

55311702
carsten@vorbo.dk

Placering

Kontakt

Falunvej 8
4760 Vordingborg

CVR nr. 70 96 26 16

Telefon: 45 55 37 18 84
info@vorbo.dk

Åbningstider

Mandag: kl. 08.30 - 15.00
Tirsdag - torsdag: kl. 08.30 - 12.30
Torsdag tillige: kl. 16.00 - 17.30
Fredag: lukket

Webstedslinks