Skip til hoved indholdet Bliv medlem Bliv medlem

Velkommen til afdeling 171 Rytterskolen

Rytterskolen er vores bebyggelse på Bogø Hovedgade. Bebyggelsen ligger centralt på Bogø, tæt på øens dagligvarebutik og med kort afstand til en enestående natur ned til Bøgestrømmen.
Ejendommen, der tidligere var øens skole, blev ombygget i 1994 og indeholder nu 10 lejligheder. Ved ombygningen fra skole til lejligheder, blev ejendommen præmieret for sin smukke restaurering.
Lejlighederne opvarmes fra fælles varmepumpe og har egen fællesantenne og fibernet.

Faciliteter

Fællesvaskeri

Ja

Byggeår

1800

Husdyr
Ja

1 husdyr tilladt efter ansøgning. Hund max. 25 kg.

Boligtyper i afdelingen

Almen bolig

2 værelses

Almen bolig
Almen bolig

3 værelses

Almen bolig

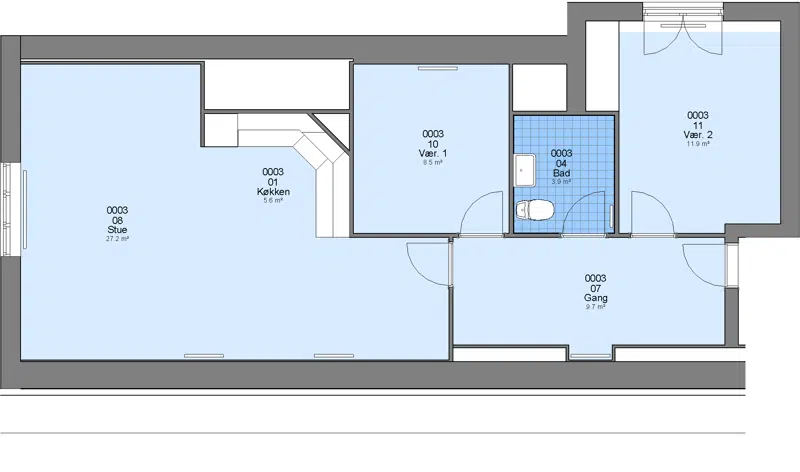
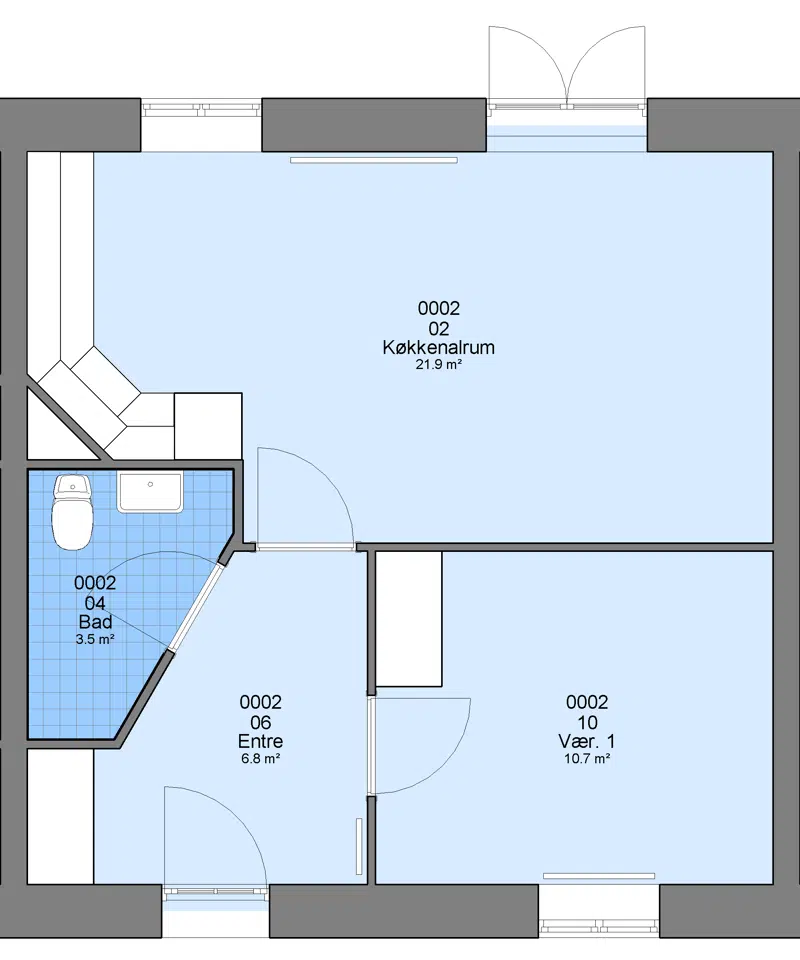
Boligtype

Værelser

Størrelse

Husleje

Indskud/dp

Plantegning

Almen bolig

2

55 m²

5311 kr.

16000 kr.

Almen bolig

3

78 m²

6768 kr.

19000 kr.

Afdelingsdokumenter

Her finder du nyttig information om din afdeling, såsom husorden, vedligeholdelse af dit lejemål, eller referater fra hovedbestyrelsen.

Afdelingsbestyrelsesmedlemmer

Navn

Email

Ove Skov Andersen

Kontakt - Christian Johannsen

Ejendomsfunktionær

Adresse:


4780 Stege


Kontakt - Søren Jeppesen

Driftsleder

Adresse:


Placering

Kontakt

Falunvej 8
4760 Vordingborg

CVR nr. 70 96 26 16

Telefon: 45 55 37 18 84
info@vorbo.dk

Åbningstider


Mandag- torsdag: kl. 08.30 - 12.30
Torsdag tillige: kl. 16.00 - 17.00
Fredag: lukket

Webstedslinks