Skip til hoved indholdet Bliv medlem Bliv medlem

Velkommen til afdeling 423 Skolevej 20-26

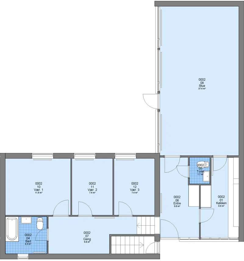
Vores bebyggelse på Skolevej omfatter 20 store gårdhavehuse på 119 m2 med egen have og med en stor kælder på 50 m2. Boligerne er opført i 1971, og ligger 50 meter fra Præstø Skole og kun 300 meter til nærmeste dagligvarebutik. Boligerne opvarmes med fjernvarme. Der er installeret nye køkkener og til lejemålet hører komfur, køleskab og emhætte. Præstø by ligger ca. 10 km. fra motorvejsafkørsel 39, hvorfra der kun er ca. 80 km. til København. Præstø er en gammel købstad med et hyggeligt havnemiljø og en mindre badestrand.

Faciliteter

Byggeår

1971

Husdyr
Ja

2 husdyr tilladt efter ansøgning.

Boligtyper i afdelingen

Almen bolig

4 værelses

Almen bolig

Boligtype

Værelser

Størrelse

Husleje

Indskud/dp

Plantegning

Almen bolig

4

119 m²

6286 kr.

32130 kr.

Afdelingsdokumenter

Her finder du nyttig information om din afdeling, såsom husorden, vedligeholdelse af dit lejemål, eller referater fra hovedbestyrelsen.

Afdelingsbestyrelsesmedlemmer

Navn

Email

Hans-Jørgen Jørgensen

Heidi Holm Cort Jensen

Ole Kikkenborg

olekikk@gmail.com

Hanne Brædder

Bettina Jørgensen

Kontakt - Jimmy Rysager

Ejendomsfunktionær

Adresse:


4720 Præstø


Kontakt - Per Nielsen

Driftsleder

Adresse:


Placering

Kontakt

Falunvej 8
4760 Vordingborg

CVR nr. 70 96 26 16

Telefon: 45 55 37 18 84
info@vorbo.dk

Åbningstider

Mandag: kl. 08.30 - 15.00
Tirsdag - torsdag: kl. 08.30 - 12.30
Torsdag tillige: kl. 16.00 - 17.30
Fredag: lukket

Webstedslinks