Velkommen til afdeling 110 Stege Havblik
Afdelingen Stege Havblik omfatter bebyggelserne i Langgade 61, Storegade 44 og de seneste opførte på adressen Ved Stranden. Bebyggelserne ligger alle med udsigt til vandet og centralt i Stege, tæt på indkøb og byens aktive handelsstrøg. Ejendommene opvarmes med fjernvarme, er tilsluttet Stege Antennelaug og der er installeret komfur, emhætte og køleskab. Bebyggelsen i Langgade 61 indeholder 20 lejligheder som ved ombygning i 1992 blev indrettet i et tidligere plejehjem. Bebyggelsen er forsynet med elevator til 1. sal. Bebyggelsen i Storegade er det gamle pakhus der i 1993 blev ombygget til 12 lejemål. Der er et hyggeligt gårdmiljø ligesom der fra lejlighederne er udsigt til Noret og Stege by. Bebyggelsen Ved Stranden omfatter 27 lejligheder, som ligger smukt ved Stege Bugt ovenpå og ved siden af Netto ved havnen.
Som det fremgår, er der stor variation af lejlighederne i denne afdeling. Der henvises derfor til administrationen for nærmere information.
Faciliteter
Elevatoradgang
Elevatoradgang
Ja
1912,1939,2004
Se husorden i ”Afdelingsdokumenter” (længere ned på siden), da der er forskellige regler afhængig af adressen.
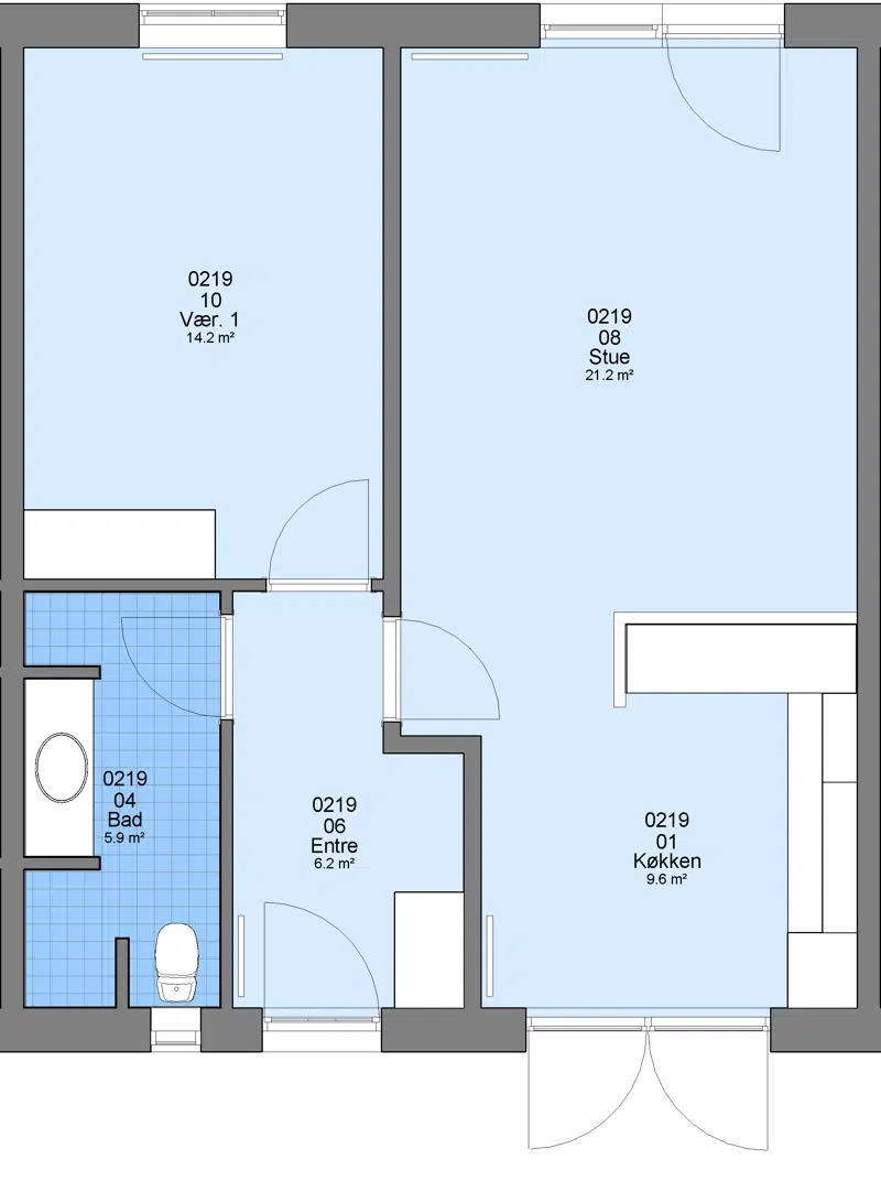
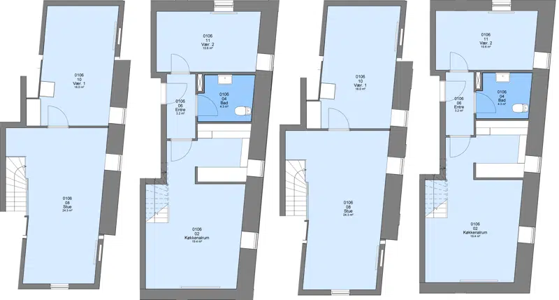
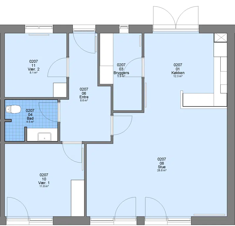
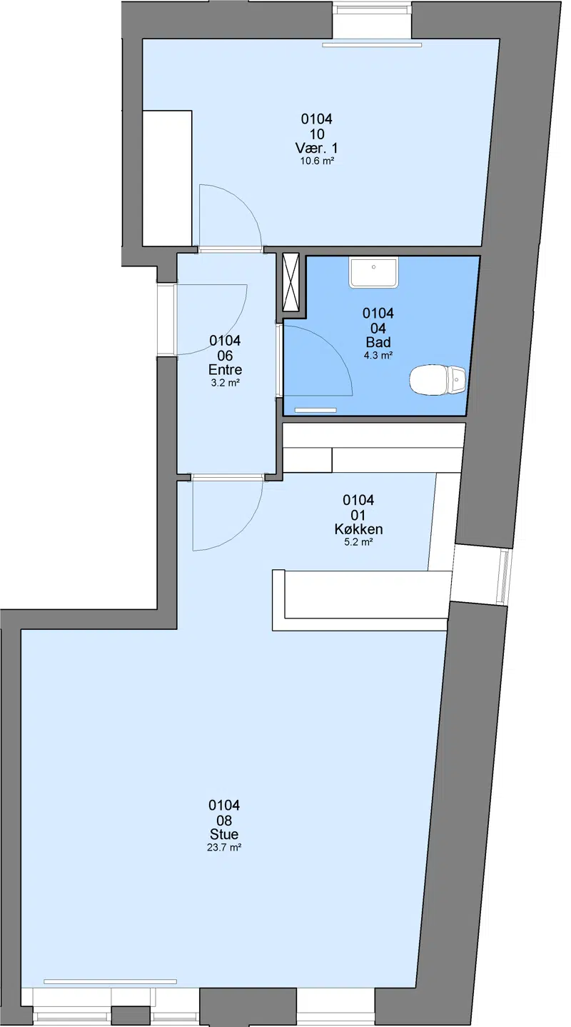
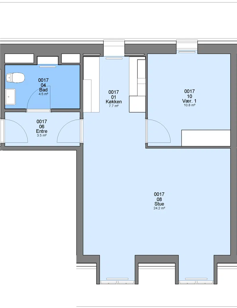
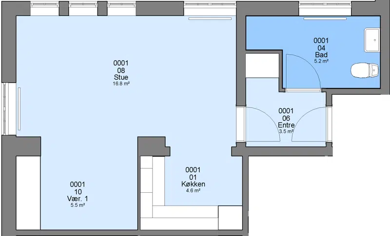
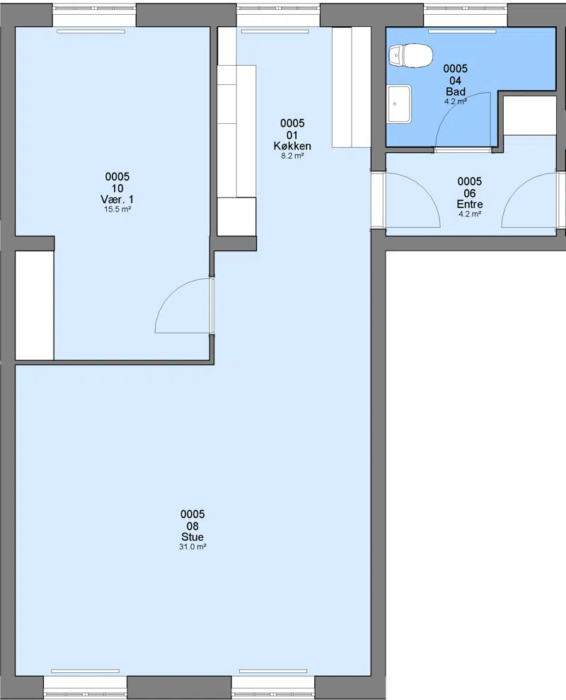
Boligtyper i afdelingen
1 værelses
2 værelses
3 værelses
4 værelses
Boligtype
Værelser
Størrelse
Husleje
Indskud/dp
Plantegning
Almen bolig
1
62.5 m²
5349 kr.
19930 kr.
Almen bolig
1
56 m²
4623 kr.
14500 kr.
Almen bolig
2
68.5 m²
7127 kr.
21850 kr.
Almen bolig
2
60.6 m²
5428 kr.
16000 kr.
Almen bolig
2
76 m²
6053 kr.
18500 kr.
Almen bolig
2
65 m²
5456 kr.
15800 kr.
Almen bolig
2
79 m²
6235 kr.
19000 kr.
Almen bolig
3
93 m²
8559 kr.
29660 kr.
Almen bolig
3
103 m²
9996 kr.
32850 kr.
Almen bolig
3
69.3 m²
6186 kr.
18500 kr.
Almen bolig
4
84.2 m²
6718 kr.
20000 kr.
Afdelingsdokumenter
Her finder du nyttig information om din afdeling, såsom husorden, vedligeholdelse af dit lejemål, eller referater fra hovedbestyrelsen.
Afdelingsbestyrelsesmedlemmer
Navn
Jonna Pedersen