Skip til hoved indholdet Bliv medlem Bliv medlem

Velkommen til afdeling 4 Stensved

Vores afdeling i i Stensved omfatter boligområderne på Vægtervej, på Åbakken, på Hotelgrunden og på Vordingborgvej 41. Stensved er i udvikling med gode indkøbsmuligheder og tæt beliggende ved Sydmotorvejen, hvor der kun er 100 km. til København.
Lejlighederne på Vægtervej og Åbakken er rækkehuse i ét plan beliggende ved Langebæk Hallen.
Lejlighederne på Hotelgrunden og Vordingborgvej 41, er begge ejendomme i 2 etager.
Som det fremgår, er der stor variation af lejlighederne i denne afdeling. Der henvises derfor til administrationen for nærmere information.
Bemærk at fællesvaskeri kun er for lejemålene Vordingborgvej 41. Øvrige lejemål har installation til vaskemaskine i lejemålet.

Faciliteter

Altan

Ja

Fællesvaskeri

Ja

Byggeår

1983,1992,2001

Husdyr
Ja

1 kat eller 1 hund tilladt efter ansøgning.

Boligtyper i afdelingen

Almen bolig

1 værelses

Almen bolig
Almen bolig

2 værelses

Almen bolig
Ældrebolig

2 værelses

Ældrebolig
Almen bolig

3 værelses

Almen bolig
Ældrebolig

3 værelses

Ældrebolig
Almen bolig

4 værelses

Almen bolig

Boligtype

Værelser

Størrelse

Husleje

Indskud/dp

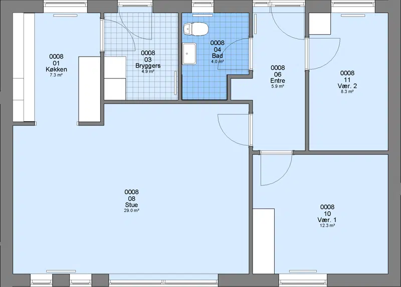
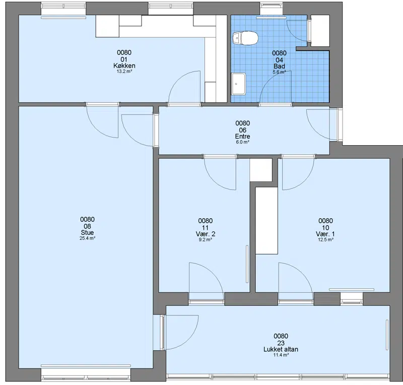
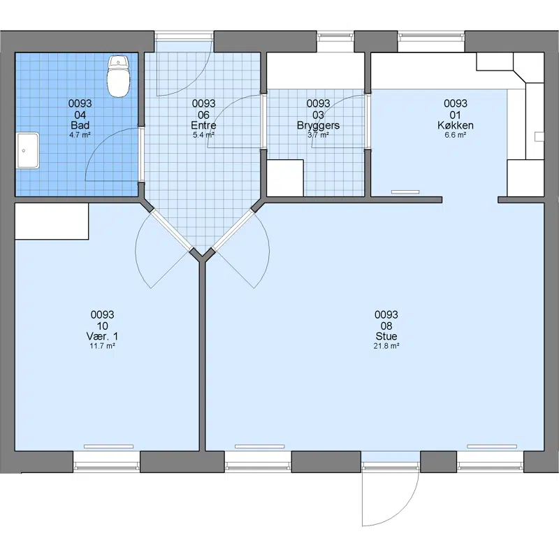
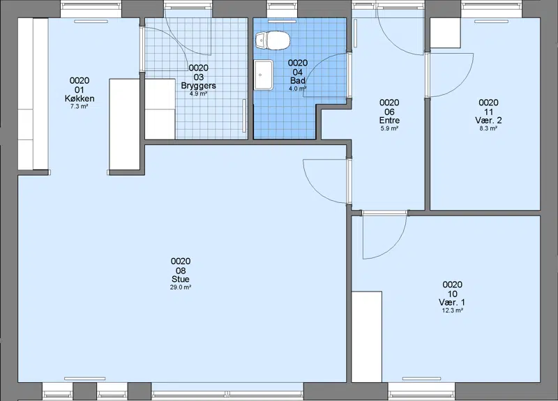
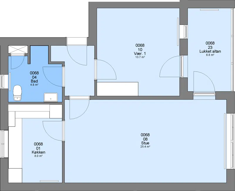
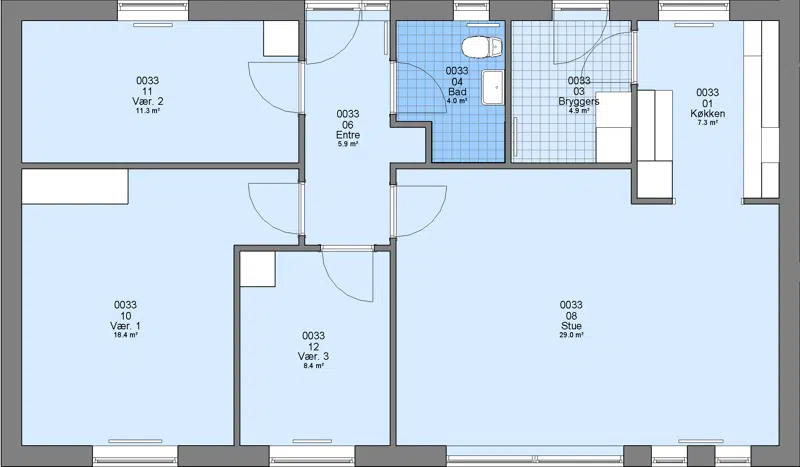
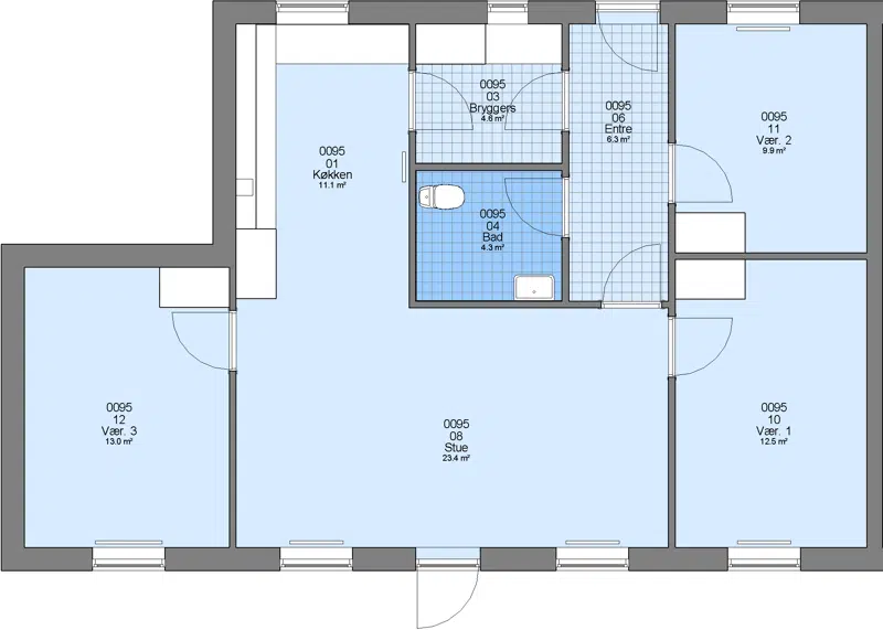
Plantegning

Almen bolig

1

42.6 m²

3544 kr.

11500 kr.

Almen bolig

2

64.75 m²

5496 kr.

19000 kr.

Almen bolig

2

83 m²

5486 kr.

23000 kr.

Almen bolig

2

66.4 m²

4550 kr.

20000 kr.

Ældrebolig

2

67 m²

4699 kr.

20000 kr.

Almen bolig

3

84.5 m²

6835 kr.

23000 kr.

Almen bolig

3

108 m²

6443 kr.

27000 kr.

Almen bolig

3

88 m²

5494 kr.

23000 kr.

Almen bolig

3

85.2 m²

5456 kr.

23000 kr.

Ældrebolig

3

85 m²

5455 kr.

23000 kr.

Almen bolig

4

100 m²

7889 kr.

27000 kr.

Almen bolig

4

112 m²

6850 kr.

27000 kr.

Almen bolig

4

104.3 m²

6428 kr.

27000 kr.

Afdelingsdokumenter

Her finder du nyttig information om din afdeling, såsom husorden, vedligeholdelse af dit lejemål, eller referater fra hovedbestyrelsen.

Afdelingsbestyrelsesmedlemmer

Navn

Email

Anette Toft Boelskov

anettetoft@hotmail.dk

Hanne Hindborg Larsen

Leif Christiansen

Steen Hansen

Aage Laurits Jørgensen

Vivian Elin Nielsen

Kontakt - Janus Lønstrøm

Ejendomsfunktionær

Adresse:


4773 Stensved


Kontakt - Søren Jeppesen

Driftsleder

Adresse:


Placering

Kontakt

Falunvej 8
4760 Vordingborg

CVR nr. 70 96 26 16

Telefon: 45 55 37 18 84
info@vorbo.dk

Åbningstider

Mandag: kl. 08.30 - 15.00
Tirsdag - torsdag: kl. 08.30 - 12.30
Torsdag tillige: kl. 16.00 - 17.30
Fredag: lukket

Webstedslinks