Skip til hoved indholdet Bliv medlem Bliv medlem

Velkommen til afdeling 437 Sv. Gønges Torv / Adelgade

Denne afdeling omfatter 14 boliger, opført i 1997, centralt beliggende i Præstø bymidte tæt på indkøbsmuligheder og busstation. Svend Gønges Torv 1 er et byggeri i 3 etager med 7 boliger og Svend Gønges Torv 7 er i 2 etager med 3 boliger. Stuelejlighederne er forbeholdt ældre/handicappede over 60 år. Adelgade 17 består af 3 lejligheder med 3 etager, hvor 1. og 2. sals lejlighederne er herskabslejligheder. Adelgade 15 er en lille "ungkarlelejlighed". Boligerne opvarmes med fjernvarme. Til lejemålet hører komfur og emhætte, fælles udhus, eget udhus eller kælderrum. Præstø by ligger ca. 10 km. fra motorvejsafkørsel 39, hvorfra der kun er ca. 80 km. til København. Præstø er en gammel købstad med et hyggeligt havnemiljø og en mindre badestrand.

Faciliteter

Byggeår

1905,1997

Husdyr
Ja

1 kat eller 1 hund tilladt efter ansøgning.

Boligtyper i afdelingen

Almen bolig

2 værelses

Almen bolig
Almen bolig

3 værelses

Almen bolig

Boligtype

Værelser

Størrelse

Husleje

Indskud/dp

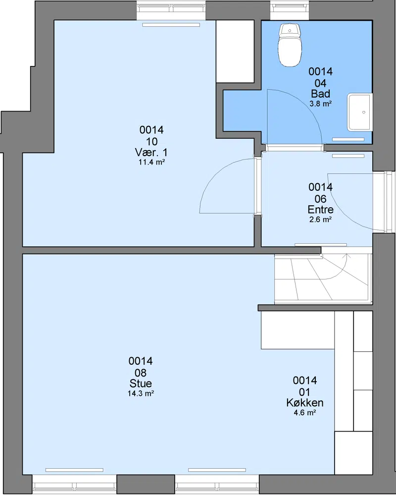
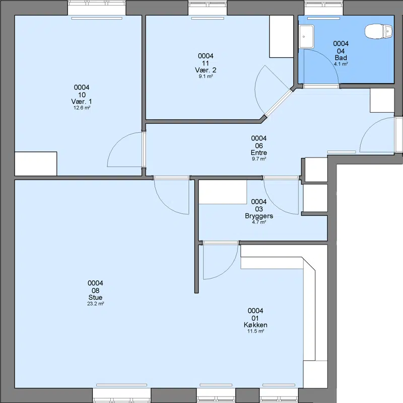
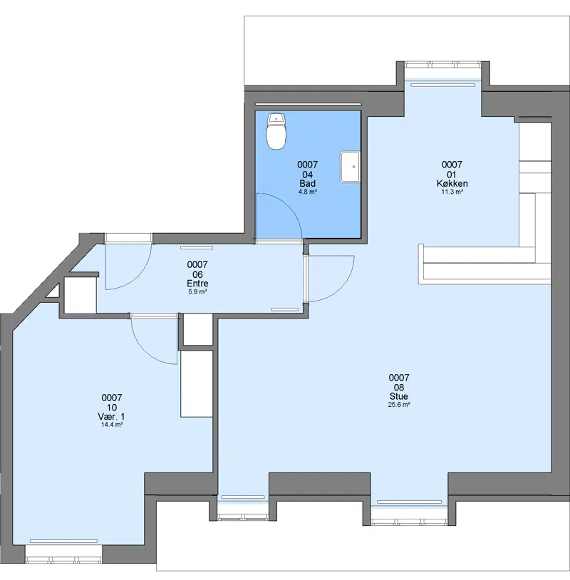
Plantegning

Almen bolig

2

43 m²

4032 kr.

10320 kr.

Almen bolig

2

63 m²

6026 kr.

15120 kr.

Almen bolig

2

81 m²

7155 kr.

19440 kr.

Almen bolig

3

93 m²

7685 kr.

24960 kr.

Almen bolig

3

96 m²

8204 kr.

23040 kr.

Afdelingsdokumenter

Her finder du nyttig information om din afdeling, såsom husorden, vedligeholdelse af dit lejemål, eller referater fra hovedbestyrelsen.

Afdelingsbestyrelsesmedlemmer

Navn

Email

Gudmund Nielsen

gudmundknielsen@gmail.com

Kontakt - Jimmy Rysager

Ejendomsfunktionær

Adresse:


4720 Præstø


Kontakt - Per Nielsen

Driftsleder

Adresse:


Placering

Kontakt

Falunvej 8
4760 Vordingborg

CVR nr. 70 96 26 16

Telefon: 45 55 37 18 84
info@vorbo.dk

Åbningstider

Mandag: kl. 08.30 - 15.00
Tirsdag - torsdag: kl. 08.30 - 12.30
Torsdag tillige: kl. 16.00 - 17.30
Fredag: lukket

Webstedslinks