Skip til hoved indholdet Bliv medlem Bliv medlem

Velkommen til afdeling 163 Ulvsund Centret

Denne afdeling kan man ikke skrive sig op til, idet ældreboligerne udlejes efter anvisning fra Vordingborg kommune.

Hvis man har behov for en lejlighed, som er specielt indrettet til ældre og handicappede, skal man kontakte Vordingborg kommunes visitationsafdeling på tlf. 55362910 på hverdage (undtagen onsdag) mellem kl. 10:00 - 12:00. Se nærmere på www.vordingborg.dk.

Afdelingen Ulvsund Centret er beliggende Ny Ørnebjergvej 2-54 samt Ørnebjerghaven 1-12 i Lendemarke ved Stege.

På Ny Ørnebjergvej findes 28 lejemål, alle 2-værelses med undtagelse af et enkelt 1-værelses. Der er fjernvarme.

I Ørnebjerghaven er der 12 2-værelses lejligheder med elvarme.

Begge bebyggelser er opført som rækkehuse med en lille have tilknyttet hver lejlighed og alle lejemål har installeret komfur, emhætte samt køleskab. Alle lejemål er desuden ældreboliger.

Faciliteter

Byggeår

1967, 1975/1977

Husdyr
Ja

Husdyr ikke tilladt

Boligtyper i afdelingen

Ældrebolig

1 værelses

Ældrebolig
Ældrebolig

2 værelses

Ældrebolig

Boligtype

Værelser

Størrelse

Husleje

Indskud/dp

Plantegning

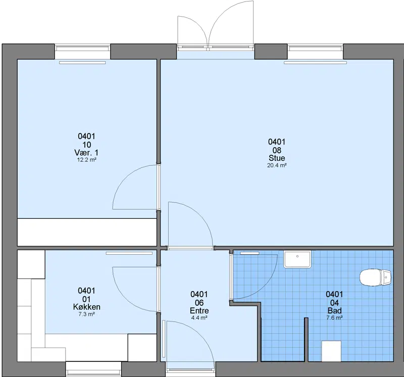
Ældrebolig

2

60 m²

5999 kr.

17970 kr.

Afdelingsdokumenter

Her finder du nyttig information om din afdeling, såsom husorden, vedligeholdelse af dit lejemål, eller referater fra hovedbestyrelsen.

Kontakt - Stig Jensen

Ejendomsfunktionær

Adresse:


Kontakt - Søren Jeppesen

Driftsleder

Adresse:


Placering

Kontakt

Falunvej 8
4760 Vordingborg

CVR nr. 70 96 26 16

Telefon: 45 55 37 18 84
info@vorbo.dk

Åbningstider

Mandag: kl. 08.30 - 15.00
Tirsdag - torsdag: kl. 08.30 - 12.30
Torsdag tillige: kl. 16.00 - 17.30
Fredag: lukket

Webstedslinks