Skip til hoved indholdet Bliv medlem Bliv medlem

Velkommen til afdeling 508 Valdalsparken

Valdalsparken som er opført i 1956 er en af selskabets store bebyggelser og består af 3 boligblokke som ligger centralt midt i byen, meget tæt på indkøb og gågade. Ejendommen opvarmes med fjernvarme og er tilsluttet Vordingborg Antenneforening. Der er fællesvaskeri i kældrene hvor beboernes egne kælderrum også findes. Alle lejligheder har altan.
Bebyggelsen er i 3 etager med i alt 105 lejemål beliggende st., 1. og 2. sal. I 1996 blev badeværelserne moderniseret og i 2006 fik beboerne nye køkkener. Til afdelingen hører desuden 34 garager/carporte som lejes ud til beboerne efter ventelisteprincippet. Der er installeret komfur og emhætte (dog ikke emhætte i de 1-rums).
Stor renovering forventet opstart august 2024 og løber over 2,5 år.
- Udskiftning af tag, og tagvinduer, døre og vinduer i facader, samt betonrenovering af altaner og pudsede facader
- Forventet huslejestigning på 42 % (2023)

Faciliteter

Altan

Ja

Fællesvaskeri

Ja

Byggeår

1956

Husdyr
Ja

1 kat tilladt efter ansøgning.

Boligtyper i afdelingen

Almen bolig

1 værelses

Almen bolig
Almen bolig

2 værelses

Almen bolig
Almen bolig

3 værelses

Almen bolig
Almen bolig

4 værelses

Almen bolig
Almen bolig

5 værelses

Almen bolig

Boligtype

Værelser

Størrelse

Husleje

Indskud/dp

Plantegning

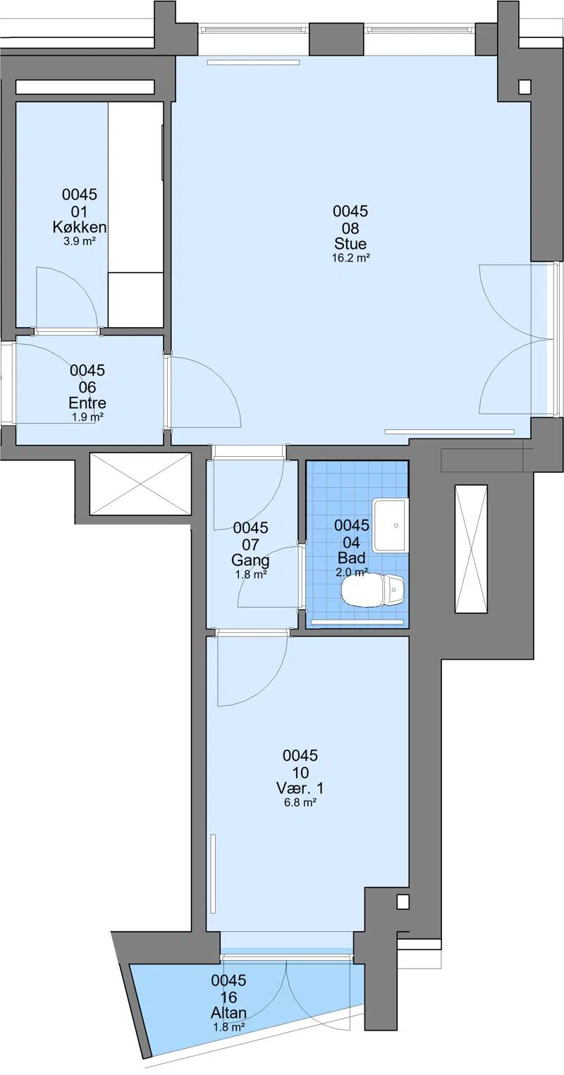
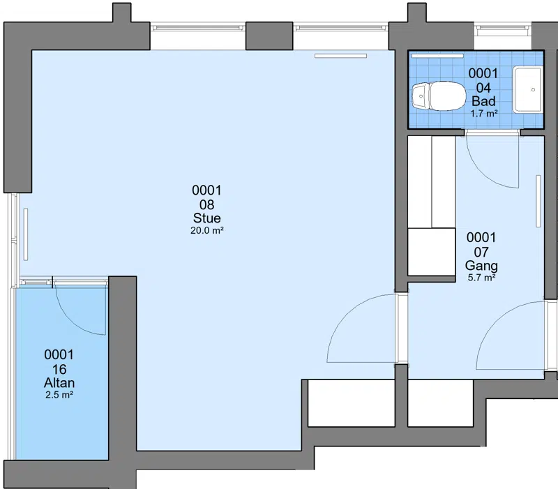
Almen bolig

1

37 m²

2519 kr.

8900 kr.

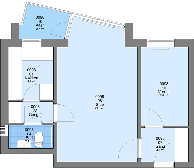
Almen bolig

2

55 m²

3564 kr.

13200 kr.

Almen bolig

2

42 m²

2773 kr.

10080 kr.

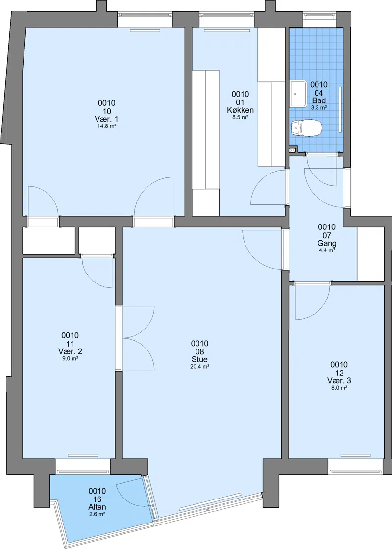
Almen bolig

3

83 m²

4970 kr.

19920 kr.

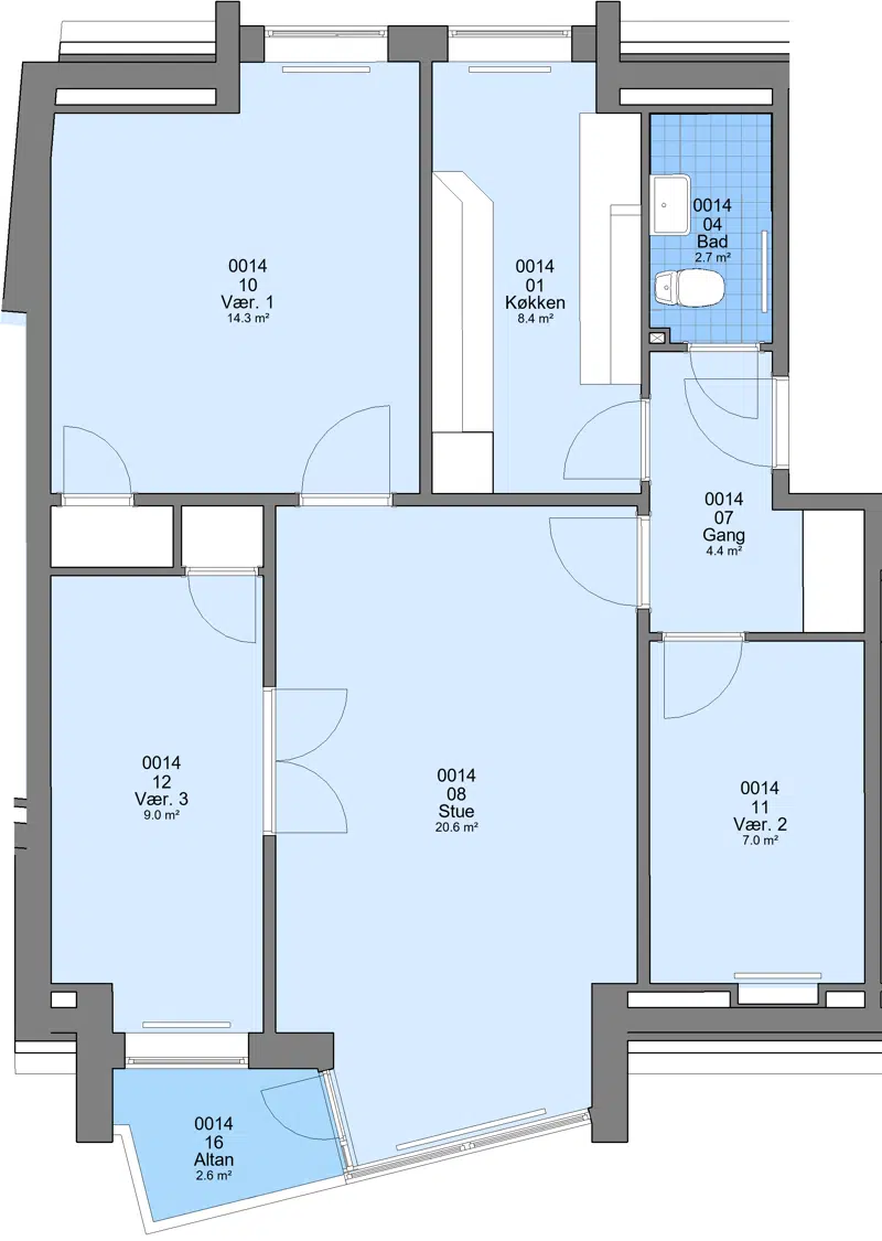
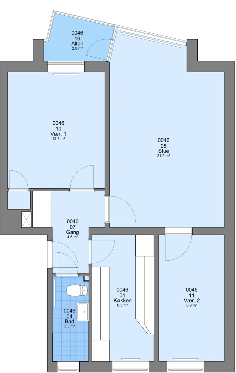
Almen bolig

3

76 m²

4618 kr.

18240 kr.

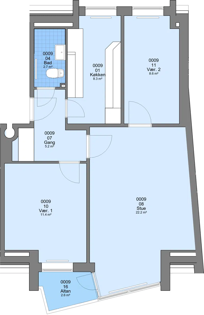
Almen bolig

3

67 m²

4190 kr.

16080 kr.

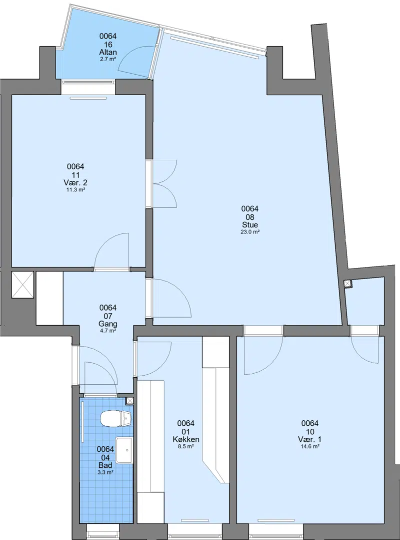
Almen bolig

4

76 m²

4633 kr.

18240 kr.

Almen bolig

4

88 m²

5194 kr.

21120 kr.

Almen bolig

5

93 m²

5431 kr.

22320 kr.

Almen bolig

5

107 m²

6110 kr.

25680 kr.

Afdelingsdokumenter

Her finder du nyttig information om din afdeling, såsom husorden, vedligeholdelse af dit lejemål, eller referater fra hovedbestyrelsen.

Afdelingsbestyrelsesmedlemmer

Navn

Email

Kasper Grønberg Jakobsen

kasperjakobsen286@live.dk

Tanya Rossé Jessen

Brian Nick Andersen

Leif Fischer Jensen

Kontakt - Holger Nielsen

Ejendomsfunktionær

Adresse:


4760 Vordingborg

22434935

Kontakt - Carsten Thomsen

Driftsleder

Adresse:

Falunvej 8
4760 Vordingborg

55311702
carsten@vorbo.dk

Placering

Kontakt

Falunvej 8
4760 Vordingborg

CVR nr. 70 96 26 16

Telefon: 45 55 37 18 84
info@vorbo.dk

Åbningstider

Mandag: kl. 08.30 - 15.00
Tirsdag - torsdag: kl. 08.30 - 12.30
Torsdag tillige: kl. 16.00 - 17.30
Fredag: lukket

Webstedslinks