Skip til hoved indholdet Bliv medlem Bliv medlem

Velkommen til afdeling 504 Vesterbo 2

Vesterbo II er oprindeligt opført i 1944 og har gennemgået en omfattende sokkelrenovering.
Det er små rækkehuse med have som ligger ud mod banen, samt egen p.plads.
Afdelingen ligger i byens vestlige ende med banegården liggende "lige om hjørnet".
Lejlighederne opvarmes med fjernvarme.
Bebyggelsen er rækkehuse med i alt 12 lejemål.


Faciliteter

Byggeår

1944

Husdyr
Ja

1 kat og 1 hund tilladt efter ansøgning.

Boligtyper i afdelingen

Almen bolig

3 værelses

Almen bolig

Boligtype

Værelser

Størrelse

Husleje

Indskud/dp

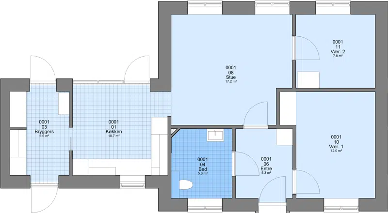
Plantegning

Almen bolig

3

86 m²

8997 kr.

32000 kr.

Afdelingsdokumenter

Her finder du nyttig information om din afdeling, såsom husorden, vedligeholdelse af dit lejemål, eller referater fra hovedbestyrelsen.

Afdelingsbestyrelsesmedlemmer

Navn

Email

Niels Oluf Skipper

isotester@gmail.com

Katrine Grønkjær Hansen

Hanne Rasmussen

Kontakt - Michael Larsen

Ejendomsfunktionær

Adresse:


Kontakt - Carsten Thomsen

Driftsleder

Adresse:

Falunvej 8
4760 Vordingborg

55311702
carsten@vorbo.dk

Placering

Kontakt

Falunvej 8
4760 Vordingborg

CVR nr. 70 96 26 16

Telefon: 45 55 37 18 84
info@vorbo.dk

Åbningstider

Mandag: kl. 08.30 - 15.00
Tirsdag - torsdag: kl. 08.30 - 12.30
Torsdag tillige: kl. 16.00 - 17.30
Fredag: lukket

Webstedslinks